V bráně do východních Krkonoš, vzniká projekt horských apartmánů, který v sobě kloubí moderní bydlení s dostupností hor, přírody, sportu i relaxace.
Dostupné
Apartmán
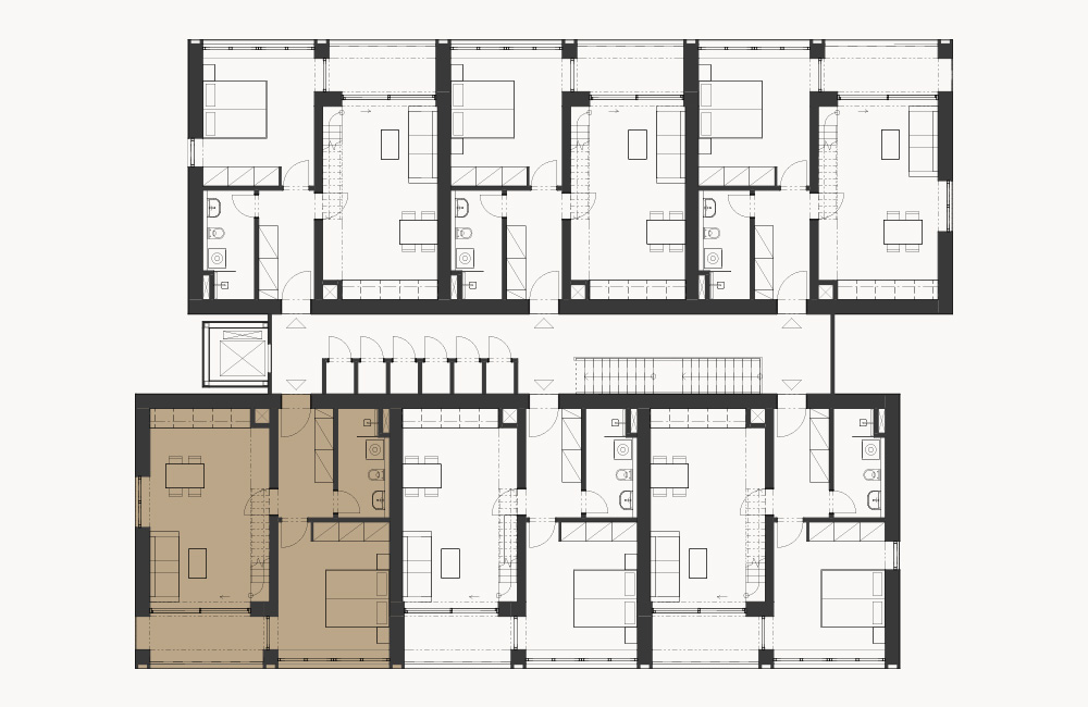
B9
9 922 000 Kč
Dispozice bytu 3+KK
Orientace oken J, Z
Celková plocha 76,10 m²
Vnitřní plocha 63,6 m²
A1
Hala 5,99 m²
A2
Obývací pokoj + kuchyně 22,33 m²
A3
Ložnice 15,48 m²
A4
Ložnice 14,93 m²
K
Koupelna 4,87 m²
L
Lodžie 5,50 m²
T
Terasa 7 m²
Zaujal vás apartmán?
Kontaktujte nás
Rádi Vás uslyšíme
Zavolejte nám
Odpovídáme rychle
Napište nám zprávu
Tato stránka je chráněna službou reCAPTCHA, na kterou se vztahují Privacy Policy a Terms of Service společnosti Google. Odesláním formuláře souhlasíte se zpracováním osobních údajů za účelem vyřízení odpovědi na zaslaný dotaz nebo požadavek.





